**In Prossima Ristrutturazione : Ampio Appartamento Bilocale con Progetto Personalizzabile , in centro a Sommacampagna,
Presentiamo un’opportunità imperdibile: un ampio e luminoso appartamento situato al primo/secondo piano di una bifamiliare esclusiva che renderà gli spazi unici e personalizzati secondo le tue esigenze.
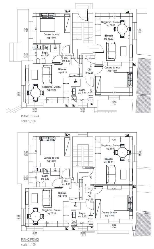
* Dettagli dell’Appartamento
Questo immobile si distingue per le sue caratteristiche impeccabili:
– Zona giorno, ideale per accogliere momenti di convivialità.
– 1 camere matrimoniali spaziose: perfette per garantire il massimo del
comfort.
– 1 bagni : per una funzionalità ottimale
– 2 balconi : ideali per godersi la vista e momenti con amici ed in famiglia.
– Garages coperto : per una maggiore comodità e sicurezze .
– Cantina
– Giardino condominiale : un angolo verde da condividere.
* Comfort e Qualità
L’appartamento sarà dotato di riscaldamento a pavimento, accompagnato da tapparelle elettriche in alluminio coibentato, garantendo così un eccellente risparmio energetico e un comfort abitativo senza pari.
* Personalizzazione Unica
Grazie al progetto già pronto, avrai l’opportunità di adattare gli spazi interni, le finiture e persino gli arredi secondo il tuo stile personale. Gli arredi proposti nei render sono disponibili presso il nostro mobilificio convenzionato e possono essere visionati in loco.
* Vantaggio Fiscale Esclusivo
Un ulteriore vantaggio di questa proposta è rappresentato dalle detrazioni fiscali che ammontano ad almeno 48.000 euro. Questa opportunità non solo offre un valore abitativo eccezionale, ma rappresenta anche un interessante vantaggio economico. Vi aspettiamo in agenzia per maggiori informazioni e chiarimenti.
Con consegna programmata e tempistiche certe, questo appartamento è l’occasione ideale per chi cerca una residenza che combini comfort, qualità e possibilità di personalizzazione. Situato nel centro di Sommacampagna, vicino a tutti i servizi (Scuole, Alimentari, Farmacia ecc …. ) Non lasciarti sfuggire questa occasione unica!
🏠 Benvenuti nell’Agenzia Immobiliare IMMOBILPLACE! 🏠
🌟 Dove i tuoi sogni di casa diventano realtà! 🌟
Sei alla ricerca della casa dei tuoi sogni o desideri vendere la tua proprietà al miglior prezzo sul mercato? Siamo qui per te!
✨ Cosa ci rende unici:
ESPERIENZA: Con anni di esperienza nel settore immobiliare, siamo esperti nel trovare la soluzione perfetta per ogni cliente.
PROFESSIONALITÀ: Il nostro team dedicato e altamente professionale lavora instancabilmente per garantire il massimo risultato per te.
VARIETÀ: Offriamo una vasta selezione di proprietà, dalle accoglienti case familiari ai lussuosi appartamenti, dalle affascinanti proprietà di campagna alle eleganti residenze urbane.
TRASPARENZA: La trasparenza è fondamentale per noi. Ti guidiamo attraverso ogni passo del processo di acquisto o vendita con chiarezza e onestà.
CUSTOMER CARE: Mettiamo i nostri clienti al centro di tutto ciò che facciamo. La tua soddisfazione è la nostra priorità numero uno.
🔑 Servizi offerti:
Acquisto e vendita di immobili residenziali, commerciali e terreni
Consulenza finanziaria e mutui
Valutazioni accurate della proprietà
Assistenza legale e amministrativa
Gestione della proprietà
🌈 La tua casa dei sogni ti aspetta! Contattaci oggi stesso per una consulenza personalizzata e inizia il tuo viaggio verso la casa perfetta con IMMOBILPLACE Agenzia Immobiliare! 🏡







