OPPORTUNITÀ UNICA! Capannone Commerciale/Artigianale ad Affi (VR) 🚀
Posizione Strategica: La Tua Vetrina sul Successo!
Affi, a pochi minuti dall’uscita autostradale A22 (Brennero-Modena) e dal principale snodo di comunicazione del Lago di Garda. La posizione ideale per chi cerca visibilità e un facile accesso logistico.
Caratteristiche Principali dell’Immobile
Questo capannone versatile è la soluzione perfetta per aziende che necessitano di ampi spazi per esposizione, vendita e attività artigianali/logistiche.
Caratteristiche:
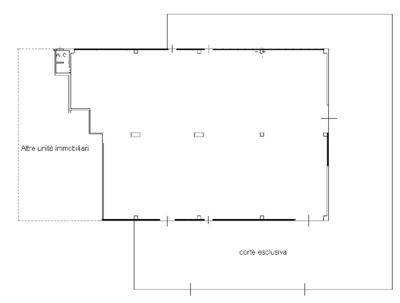
Superficie Capannone 875 mq.
Ampia flessibilità operativa e di layout.
Area Uffici & Servizi Presente. Spazi amministrativi e igienici già pronti all’uso.
Piazzale Esterno 765 mq. Ideale per carico/scarico agevole, parcheggio clienti e/o stoccaggio esterno.
Accessi Logistici: 2 ampi portoni carrai. Massima comodità e gestione separata di ingressi/uscite.
Sicurezza: 3 Uscite di Sicurezza. Conformità e sicurezza per operatori e clienti.
Perfetto per Showroom e Vendita al Dettaglio: La combinazione capannone + ampio piazzale offre la tela perfetta per allestire una spettacolare area espositiva.
Logistica e Distribuzione: Vicinanza all’autostrada = ottimizzazione dei tempi di trasporto.
Attività Artigianali: Spazi interni ed esterni che si adattano a ogni esigenza produttiva.













