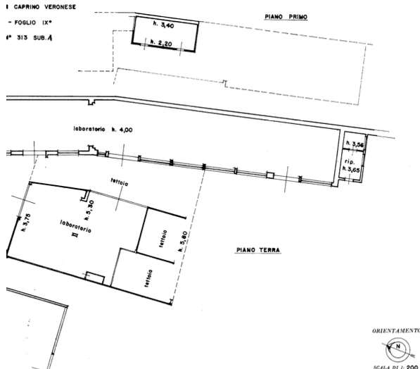
Complesso immobiliare costituito da vari corpi di fabbrica: alcuni edificati in aderenza, alcuni che si sviluppano su più livelli fuori terra, alcuni isolati oltre ad area esterna di pertinenza, il tutto ubicato nel Comune di Caprino Veronese (VR), in Località Gamberon, Via Gamberon n 17. Trattasi di capannoni adibiti alla lavorazione ed allo stoccaggio di materiali lapidei, con annessi uffici amministrativi, magazzini e depositi nonché abitazione, oltre terreni.
Per informazioni contattare l’ufficio di Verona al 3924368837

































